

Follow
0
0
0
LALANJR JR
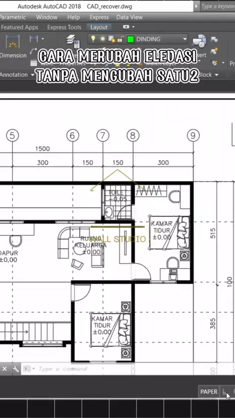
Baca Caption Trik AutoCAD kali ini aku share gratis karena caranya juga gratis Kalian bisa gunakan trik yang satu ini tanpa plugin di AutoCAD Karena murni bawaan dari AutoCAD nya sendiri Nah apa sih itu trik nya Untuk trik nya kalian bisa gunakan menggunakan shortcut FIND Cukup masukan text awal dan masukan text akhir serta kalian bisa langsung replace all atau kalian bisa klik satu satu untuk memilihmu object yang mau dirubah Bagaimana mudah bukan Follow untuk Trik AutoCAD lainnya Salam sa...
More
Comment
Cancel
Send